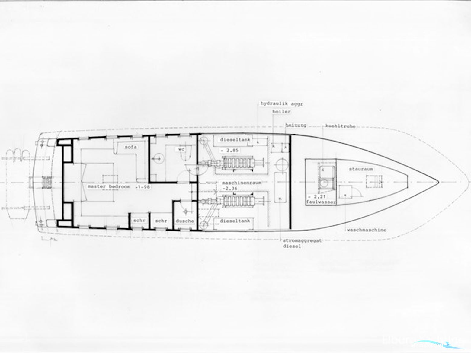
Denne smukke Super van Craft er unik på grund af dens bredde på 4,95 m. Dette skaber et generøst indre rum med en stor ejerhytte, stue med masser af siddepladser og stort styrehus med spisekrog. Gennem de dobbelte døre kan styrehuset forbindes med agterdækket, som kan lukkes helt af med et telt. Denne båd leveres med bl.a.: rustfrit stål ræling + teak, bagudrettet kamera, Siemens opvaskemaskine, teakgulv i køkkenet, brusebad/toilet adskilt i forkahytten, halogenbelysning, fedtsmurte propelaksler, 2 x skydedøre, vindmåler Radio Zeeland Delta 130, roerpositionindikator + Kurvehastighedsmåler Radio Zeeland, elektrisk styret søgelampe, 4 x klappeluger i styrehuset, integreret bænk på agterdækket, rustfri stålfenderholdere, 3 x dobbeltarmeviskere, slingervindue i BB styrehusvindue, gardiner, 4G WiFi, alarmsystem, stort styrehus, stor ejerhytte med siddeplads, rustfri stålsidestige. Har du spørgsmål eller ønsker at aftale en tid, er du velkommen til at besøge Elburg Yachting syv dage om ugen.
Motorisering: 2 x 220 hk MAN D2866E, driftstimer motor
Antal senge: Sovepladser
Antal kahytter: 2 x
Brændstoftanke: Brændstoftanke
Vandtanke: Vandtanke
Sovepladser: Sovepladser
Styring: Styring
Materiale opbygning: Materiale opbygning
Materiale dæk: Materiale dæk
Davider: Davider
Ankerspil: Ankerspil
Vinduesrammer: Vinduesrammer
Interiør: Interiør
Spisekrog: Spisekrog
This beautiful Super van Craft stands out with its width of 4.95m. This creates a spacious interior with a large owner's cabin, salon with ample seating, and a large wheelhouse with dinette. The wheelhouse can be connected to the aft deck through the sliding doors, which can be fully enclosed with a tent. This vessel comes equipped with stainless steel railing + teak, rearview camera, Siemens dishwasher, teak floor in the kitchen, separate shower/toilet in the bow cabin, halogen lighting, grease-lubricated propeller shafts, 2 x sliding roofs, wind gauge Radio Zeeland Delta 130, rudder angle indicator + Turn speed indicator Radio Zeeland, Electrically operated searchlight, 4 x folding door in the wheelhouse, integrated bench on the aft deck, stainless steel fender holders, 3 x double-arm windshield wipers, Sliding window in port wheelhouse window, window curtains, 4G WiFi, burglar alarm, large wheelhouse, large owner's cabin with bench, stainless steel side ladder. For inquiries and/or appointments, you are welcome to visit Elburg Yachting 7 days a week. Engine: 2 x 220 hp MAN D2866E, engine hours Beds: Sleeping berths Cabins: 2 x Fuel tank(s): Fuel tank(s) Water tank(s): Water tank(s) Berths: Sleeping berths Steering position(s): Steering position(s) Superstructure material: Superstructure material Deck material: Deck material Davits: Davits Anchor winch: Anchor winch Window frames: Window frames Interior: Interior Dinette: Dinette
Denna vackra Super van Craft är unik med sin bredd på 4,95 m. Det skapar generösa inomhusutrymmen med en stor ägarhytt, salong med gott om sittplatser och stort styrhus med matplats. Genom de öppningsbara dörrarna kan styrhuset anslutas till akterdäcket som kan stängas helt med ett tält. Denna båt levereras med bl.a: rostfritt stål reling + teak, backkamera, Siemens diskmaskin, teakgolv i köket, separat dusch/toalett i fördäck, halogenbelysning, smörjbara propelleraxlar, 2 x skjutbart tak, vindmätare Radio Zeeland Delta 130, rattlägesindikator + Kurvhastighetsmätare Radio Zeeland, Elektriskt styrd sökljus, 4 x fällbara dörrar i styrhuset, integrerad bänk på akterdäck, rostfria fenderhållare, 3 x dubbla vindrutetorkare, Slingerruta i BB-styrhusfönster, gardiner, 4G WiFi, inbrottslarm, stort styrhus, stor ägarhytt med sittbänk, rostfri sidotrappa. För frågor och/eller bokning är du välkommen att besöka Elburg Yachting sju dagar i veckan.
Motorisering: 2 x 220 hk MAN D2866E, driftstimmar motor
Antal bäddar: Sovplatser
Antal hytter: 2 x
Bränsletank(ar): Bränsletank(ar)
Vattentank(ar): Vattentank(ar)
Sovplats(er): Sovplatser
Styrplats(er): Styrplats(er)
Material skrov: Material skrov
Material däck: Material däck
Daviter: Daviter
Ankarspel: Ankarspel
Fönsterramar: Fönsterramar
Interiör: Interiör
Matplats: Matplats
Deze mooie Super van Craft is uniek door haar breedte van 4.95m. Dit creëert een royale binnenruimte met een grote eigenaarshut, salon met veel zitmogelijkheden en groot stuurhuis met dinette. Via de openslaande deuren kan het stuurhuis worden verbonden met het achterdek welke geheel afsluitbaar is door een tent. Dit schip wordt geleverd met o.a: r.v.s. reling + teak, achteruitkijkcamera, Siemens vaatwasser, teak vloer in keuken, douche/toilet gescheiden in voorkajuit, halogeen verlichting, vetgesmeerde schroefassen, 2 x schuifdak, windmeter Radio Zeeland Delta 130, roerstandaanwijzer + Bochtssnelheidsmeter Radio Zeeland, Elektrisch bediend zoeklicht, 4 x klapdeur in stuurhuis, geïntegreerde bank op achterdek, rvs fenderhouders, 3 x dubbelarmige ruitenwissers, Slingerruit in BB stuurhuisraam, raamkleden, 4G WiFi, inbraakalarm, grote stuurhut, grote eigenaarshut met zitbank, r.v.s. zijtrap. Voor vragen en/of het maken van een afspraak bent u 7 dagen per week van harte welkom bij Elburg Yachting.Motorisering: 2 x 220 pk MAN D2866E, draaiuren draaiuren motorAantal bedden: SlaapplaatsenAantal hutten: 2 xBrandstoftank(s): Brandstoftank(s)Watertank(s): Watertank(s)Slaapplaats(en): SlaapplaatsenStuurstand(en): Stuurstand(en)Materiaal opbouw: Materiaal opbouwMateriaal dek: Materiaal dekDavits: DavitsAnkerlier: AnkerlierRaamframes: RaamframesInterieur: InterieurDinette: Dinette
Dieses wunderschöne Super van Craft Boot ist einzigartig aufgrund seiner Breite von 4,95 m. Dies schafft einen großzügigen Innenraum mit einer großen Eignerkabine, einem Salon mit vielen Sitzgelegenheiten und einem großen Steuerhaus mit Essecke. Über die Flügeltüren kann das Steuerhaus mit dem Achterdeck verbunden werden, das vollständig durch ein Zelt verschließbar ist. Dieses Schiff wird geliefert mit u.a.: Edelstahlreling + Teak, Rückfahrkamera, Siemens Geschirrspüler, Teakholzboden in der Küche, Dusch-/Toilettenraum getrennt in der Bugkabine, Halogenbeleuchtung, fettgeschmierte Wellen, 2 x Schiebedach, Windmesser Radio Zeeland Delta 130, Ruderstandsanzeiger + Kurvengeschwindigkeitsmesser Radio Zeeland, elektrisch betriebener Suchscheinwerfer, 4 x Klappdeckel im Steuerhaus, integrierte Bank auf dem Achterdeck, Edelstahl-Fenderhalter, 3 x Doppelarm-Wischer, Schwenkscheibe im BB-Steuerhausfenster, Vorhänge, 4G WiFi, Alarmanlage, großes Steuerhaus, große Eignerkabine mit Sitzbank, Edelstahl-Seitentreppe. Für Fragen und/oder Terminvereinbarungen sind Sie bei Elburg Yachting 7 Tage die Woche herzlich willkommen. Motorisierung: 2 x 220 PS MAN D2866E, Betriebsstunden Motor Anzahl Betten: Schlafplätze Anzahl Kabinen: 2 x Kraftstofftank(s): Kraftstofftank(s) Wassertank(s): Wassertank(s) Schlafplatz(en): Schlafplätze Steuerstand(e): Steuerstand(e) Aufbaumaterial: Aufbaumaterial Deckmaterial: Deckmaterial Davits: Davits Ankerwinde: Ankerwinde Fensterrahmen: Fensterrahmen Interieur: Interieur Essecke: Essecke