Traditional Klipper
- Årgang 1897, Bådtype ej oplyst til salg
- Groningen, Holland
1.763.880 DKK
(235.000 EUR)
Sælger:
Scheepsmakelaardij Fikkers
- Hooge Der A 36, 9712 AE Groningen, Holland
- Tlf. +31 503111404
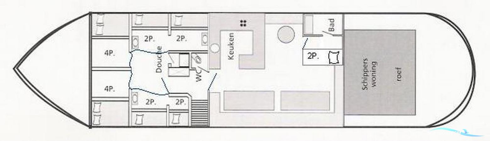
Beskrivelse
Robust clipper, den sidste ægte Oostwadzeiler! En af de få fladbundede clippere, der har et sejlområde, der strækker sig fra Den Helder til Polen. Stærkt og godt sejlskib, nyligt renoveret i 2016. Egen (fremragende) bookinger tilbydes til salg som 'going concern'.
Materiale / Målestok
Materiale
Stål
Længde
23,17
Bredde
5,85
Dybgang
1,20
Motor / teknisk information
Motor
Daf
HK
90
Motor årgang
2022
Motor antal
1
Motor placering
Indenbords
Motor timer
100
Brændstof
Diesel
Cruise speed
7
Max. speed
11
Generel bedømmelse
Skrog og Køl
Motor
Kahyt
Mast og sejl
