Traditional Klipper
- Baujahr 1897, Bootstyp Keine Angaben Verkaufen
- Groningen, Niederlande
235.000 EUR
Verkäufer:
Scheepsmakelaardij Fikkers
- Hooge Der A 36, 9712 AE Groningen, Niederlande
- Tel. +31 503111404
Beschreibung
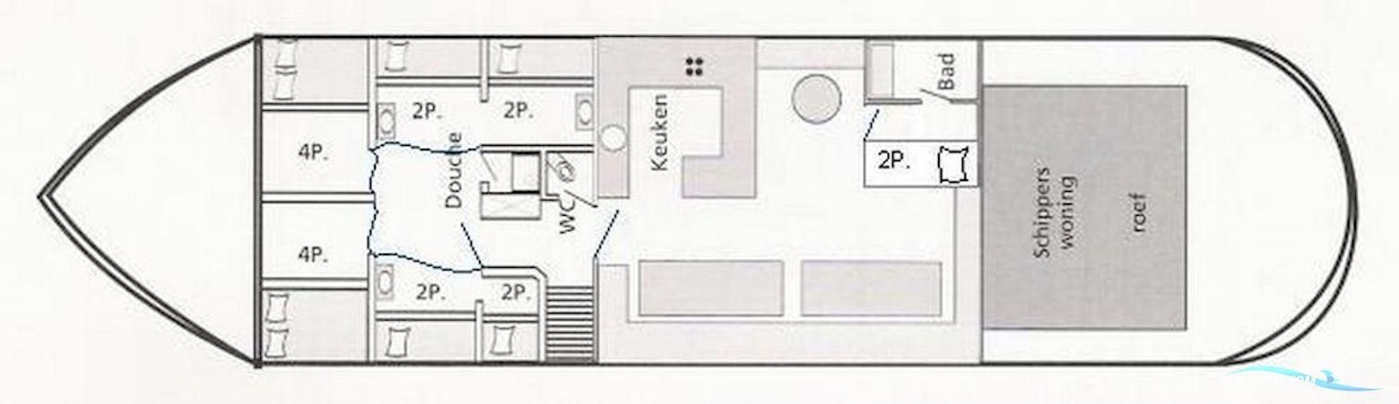
Robuster Klipper, der letzte echte Oostwadzeiler! Einer der wenigen flachbodigen Klipper mit einem Segelgebiet, das von Den Helder bis nach Polen reicht. Starkes und gut segelndes Schiff, kürzlich 2016 erneuert. Eigene (ausgezeichnete) Buchungen werden als 'laufendes Geschäft' zum Verkauf angeboten.
Materiale / Länge, Breite etc.
Material
Stahl
Länge
23,17
Breite
5,85
Tiefgang
1,20
Motor und Teknik
Motor
Daf
PS
90
Motor Baujahr
2022
Motor Anzahl
1
Motor Plazierung
Innenboarder
Motor Stunden
100
Kraftstoff
Diesel
Cruise Speed
7
Max. Geschwindigkeit
11
Generell
Rumpf und Kiel
Motor
Kajüte
Mast und Segel
