Hallberg-Rassy 42F Mk II
- Årsmodell 1996, Segelbåt till salu
- Södra Sverige, Sverige
2 390 000 SEK
Knape Marin AB
- Hälleflundregatan 12, SE 426 58 V.Frölunda, Sverige
- Tel. +46-31-697750
Beskrivning
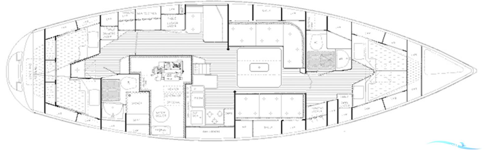
Hallberg-Rassy 42F Mk II i mycket gott skick. Fullutrustad och uppdaterad genom åren. Detaljerad utrustningslista finns på vår hemsida under EXTRA INFO / Separate and very detailed equipment list, can be seen under EXTRA INFO here on the website. Båten har bara haft 3 ägare. Motortimmar är ca. 4500 Levereras besiktigad av fristående auktoriserad besiktningsman
Materiale / längd, bredd etc.
Skrov
Glasfiber
Längd
13,22
Bredd
3,95
Djup
2,00
Motor & teknik
Motor
Volvo Penta Tmd 22
HK
76
Motor, nummer
1
Motorplacering
Inombordare
Drivmedel
Diesel
Maxhastighet
8
